Studio V
Studio V emphasizes conceptual architectural thinking, materiality, and natural daylighting, while introducing the integration of building technologies within the architectural design process. The studio includes a material energy project that explores transforming a phrase into a structure and developing a mixed-use building in a natural setting. Initially, Studio V led White to study the concept of material energy through his phrase 'Intense Gradients.' For his final project, White developed a medium-sized, mixed-use building located in a natural environment.
Fall 2021
Intense Gradients" is a structure that invites curiosity. Defined as the rate at which a physical quantity, such as temperature or pressure, changes in response to changes in a given variable, particularly distance, it is also known as the rate of regular or graded ascent or descent. Through ten different openings, the representation of intense gradients is observed in the structure’s form, temperature, and light. As one enters the structure, a different, even if slight, experience is created until one reaches the dark area in the middle.
Intense Gradients


Model Images
















Floor Plan


Interior View




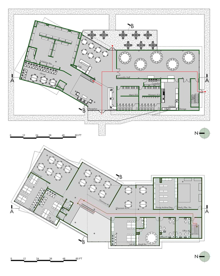
Reptile Retreat, located along the trails of Sweetwater Creek Park in Lithia Springs, Georgia, is a two-story research center dedicated to reptiles. Accessible from the trails at Sweetwater Creek and perched on the creek's edge, the center aims to inform, educate, and create experiences about the native reptiles of the area. The first floor houses an exhibition room, library, café, assembly hall, and an outdoor patio. Additionally, the second floor features classrooms and laboratories for educational purposes.
Reptile Retreat


































First Level Plan
Site Plan
Second Level Plan
Section A-A
Section B-B
Site Section Cut
Site Analysis
Adjacency Matrix
Adjacency Diagram
Zoning Diagram
Parti Process
Massing Process Models
Model Images


